Rif: TERRENO EDIFICABILE PULSANO MASSIMO
PULSANO
TARANTO
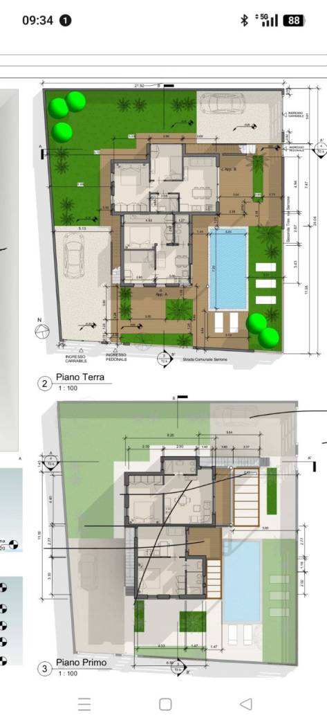
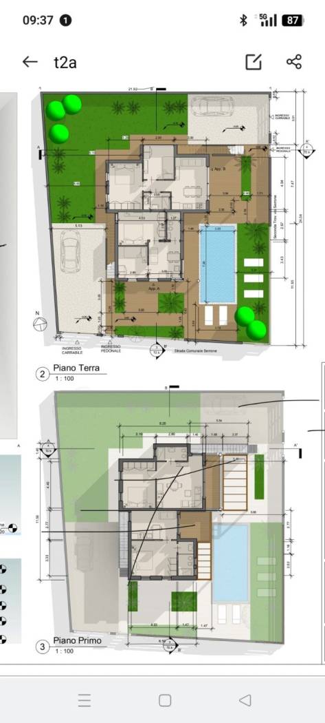
Spazio Immobiliare propone a Pulsano, Viale dei lamponi angolo viale Magna Grecia la vendita di un terreno edificabile con progetto approvato dal comune di pulsano e in attesa approvazione parere paesaggistico.
Attualmente il progetto prevede la realizzazione di numero quattro unità immobiliari di circa 55 mq cadauna di cui 2 al piano terra e 2 al piano primo oltre piscina ed aria scoperta. Il progetto è modificabile in base alle esigenze del cliente. Prezzo di vendita Eu.65.000. INFO 3939422651
Attualmente il progetto prevede la realizzazione di numero quattro unità immobiliari di circa 55 mq cadauna di cui 2 al piano terra e 2 al piano primo oltre piscina ed aria scoperta. Il progetto è modificabile in base alle esigenze del cliente. Prezzo di vendita Eu.65.000. INFO 3939422651
