Rif: Via Crispi 88, Massimiliano
TARANTO
TARANTO - zona Borgo
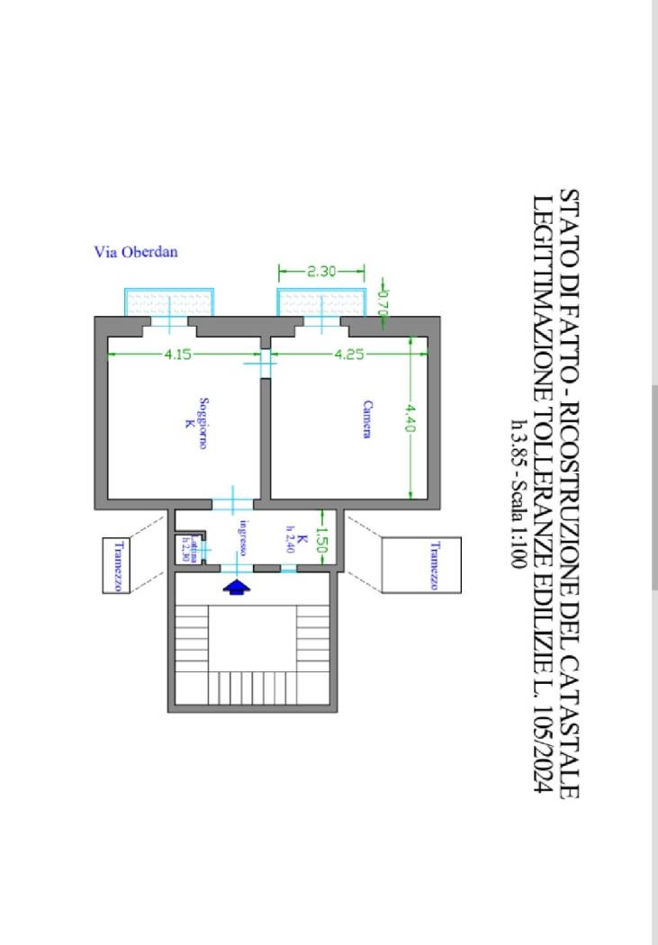
Taranto via Crispi n. 88, Spazio immobiliare propone in vendita un appartamento recentemente ristrutturato e mai abitato posto al 3 piano con ascensore appena installata. L'immobile è composto da ingresso soggiorno pranzo, camera, bagno, ripostiglio con lavatrice, due affacci su via Oberdan. Impianti e situazione catasto/comune a norma.richiesto Eu. 40.000,00
Info 3939422651
Info 3939422651
Consistenze
| Descrizione | Superficie | Sup. comm. |
|---|---|---|
| Principali | ||
| Immobile - 3° piano | 45 Mq | 45 Mqc |
| Totale | 45 Mqc | |
