Rif: Locale via Fermi, SAN GIORGIO
SAN GIORGIO IONICO
TARANTO
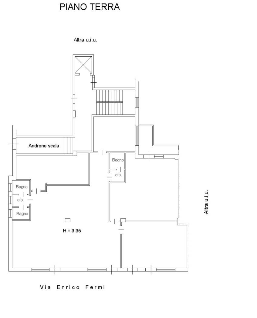
Spazio immobiliare propone in vendita a San Giorgio Ionico alla Via Fermi n.6 B locale commerciale di mq. 200 di recente costruzione.
L'immobile con 4 Vetrine su strada può se necessario essere diviso in n. 2 locali da mq. 100 cadauno avendo doppio ingresso doppi servizi e impianto elettrico ed idrico predisposto per eventuale separazione. L'immobile gode di impianto di aspirazione, impianto di allarme, climatizzazione, luci di emergenza, serrande elettriche. L'immobile è locato e offre una rendita di euro 1.500,00 (millecinquecento) mensili euro 18.000,00 diciottomila annue.
Info 3939422651
L'immobile con 4 Vetrine su strada può se necessario essere diviso in n. 2 locali da mq. 100 cadauno avendo doppio ingresso doppi servizi e impianto elettrico ed idrico predisposto per eventuale separazione. L'immobile gode di impianto di aspirazione, impianto di allarme, climatizzazione, luci di emergenza, serrande elettriche. L'immobile è locato e offre una rendita di euro 1.500,00 (millecinquecento) mensili euro 18.000,00 diciottomila annue.
Info 3939422651
Consistenze
| Descrizione | Superficie | Sup. comm. |
|---|---|---|
| Principali | ||
| Negozio - piano terra | 200 Mq | 200 Mqc |
| Totale | 200 Mqc | |
