Rif: San Giorgio
SAN GIORGIO IONICO
TARANTO
San Giorgio Ionico (Ta)
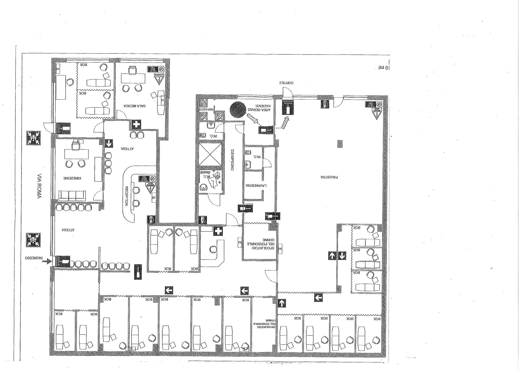
SPAZIO IMMOBILIARE propone in vendita, in zona ad alto traffico veicolare e pedonale, ampio locale commerciale di 400 mq, disposto su un unico livello al piano terra e fornito di quattro vetrate su strada e cinque vetrate su cortile. Attualmente strutturato per accogliere un centro medico-fisioterapico. L'immobile, grazie alle generose dimensioni, consente di essere utilizzato per le più svariate attività. I locali dotati di tre uscite d'emergenza sono composti da zona reception accompagnata da sala d'attesa, uffici, sala medica, sedici box, ampio disimpegno, palestra, spogliatoio uomini e spogliatoio donne, lavanderia, tre bagni di cui uno per disabili, area servizi pazienti e deposito. Possibilità di locazione al canone mensile di Eu. 2.700,00. Le presenti informazioni e planimetrie sono meramente indicative e non costituiscono elementi contrattuali.
SPAZIO IMMOBILIARE propone in vendita, in zona ad alto traffico veicolare e pedonale, ampio locale commerciale di 400 mq, disposto su un unico livello al piano terra e fornito di quattro vetrate su strada e cinque vetrate su cortile. Attualmente strutturato per accogliere un centro medico-fisioterapico. L'immobile, grazie alle generose dimensioni, consente di essere utilizzato per le più svariate attività. I locali dotati di tre uscite d'emergenza sono composti da zona reception accompagnata da sala d'attesa, uffici, sala medica, sedici box, ampio disimpegno, palestra, spogliatoio uomini e spogliatoio donne, lavanderia, tre bagni di cui uno per disabili, area servizi pazienti e deposito. Possibilità di locazione al canone mensile di Eu. 2.700,00. Le presenti informazioni e planimetrie sono meramente indicative e non costituiscono elementi contrattuali.
Consistenze
| Descrizione | Superficie | Sup. comm. |
|---|---|---|
| Principali | ||
| Negozio - piano terra | 400 Mq | 400 Mqc |
| Totale | 400 Mqc | |
